Ver tudo
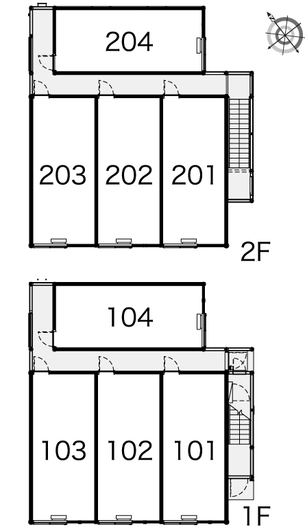
Prédio residencial レオパレスわかば 102
1K / 1° andar / 23.18m²
Favoritos
MobiliadoPiso de tablado
Ambiente ao redor
Hokkaido Noboribetsu-shi 若草町 Ver no Google Maps
Instalação
Água quente
Local para a máquina de lavar roupa
Piso de madeira
Bicicletário
Mobiliada (móveis e eletrodomésticos)
Banheira e banheiro separados
Vaso sanitário com lavagem de água quente
Secador de teto no banheiro
Tipo de fogão
Interfone com câmera

Outros :Estudantes, Com internet

Detalhes do imóvel
Ano de construção 2009/08
Planta da casa 1K / 1° andar
Área interna 23.18㎡
Estacionamento Disponível 1 veículo ¥4400 A 0m do imóvel
Área da construção De madeira
Localização 1° andar
Direção que bate a luz do sol
Entrega do imóvel
Ultima atualização 2025/03/21
Valor base das despesas iniciais
Depósito de garantia
0 ¥
Luva
40,000 ¥
Pagamento adiantado de aluguel
¥
Valor do aluguel + condomínio + despesas com administração
Taxa de corretagem
¥
Preço de um mês de aluguel + taxas
Outros
¥
Total
126,500 ¥
Despesas médias por mês
Preço do aluguel
40,000 ¥
Despesa de condomínio・despesa com taxa de administração
6,500 ¥
Outros
¥
Total
46,500 ¥
Outras despesas
Preço para renovar o contrato
¥0
Despesa para troca de chaves
¥0
Despesa para limpeza do quarto
¥0
Pagamento da empresa de seguro
¥0
Taxa de seguro da residência
Confirmar com a imobiliária
Além destes itens há outros que podem gerar despesas. Pergunte o valor exato para a imobiliária.
Imóveis semelhantes
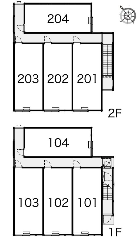
1K / 103号室 / 1° andar / 23.18m²
¥40,000 por mês
1K / 104号室 / 1° andar / 23.18m²
¥41,000 por mês
1K / 201号室 / 2° andar / 23.18m²
¥51,000 por mês
A página detalhada do Prédio residencial レオパレスわかば 102 pode ser vista na YOLO HOME, uma página especializada em imóveis em todo o Japão para intercambistas ou estrangeiros!
É possível pesquisar a partir do imóvel desejado. Procure um imóvel com as características ideais para você, como planta da casa, preço do aluguel, segurança, instalações e ambiente ao redor. A YOLO HOME apresentará informações de imóveis em todo o país para estrangeiros que queiram alugar um imóvel! Use o site de informações de imóveis da YOLO HOME para imóveis, como conjuntos residenciais, apartamentos e casas de aluguel para intercambistas ou estrangeiros.